Prodej zrekonstruovaného RD ve Šlapanicích na ulici Komenského
aktivní
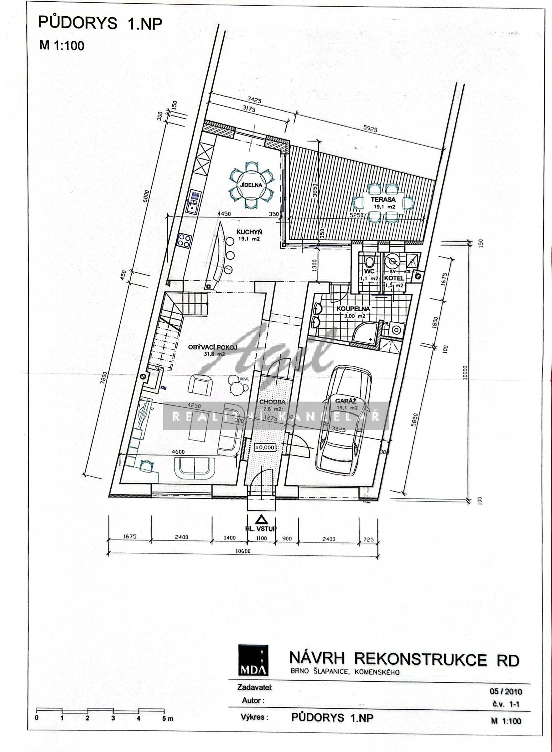
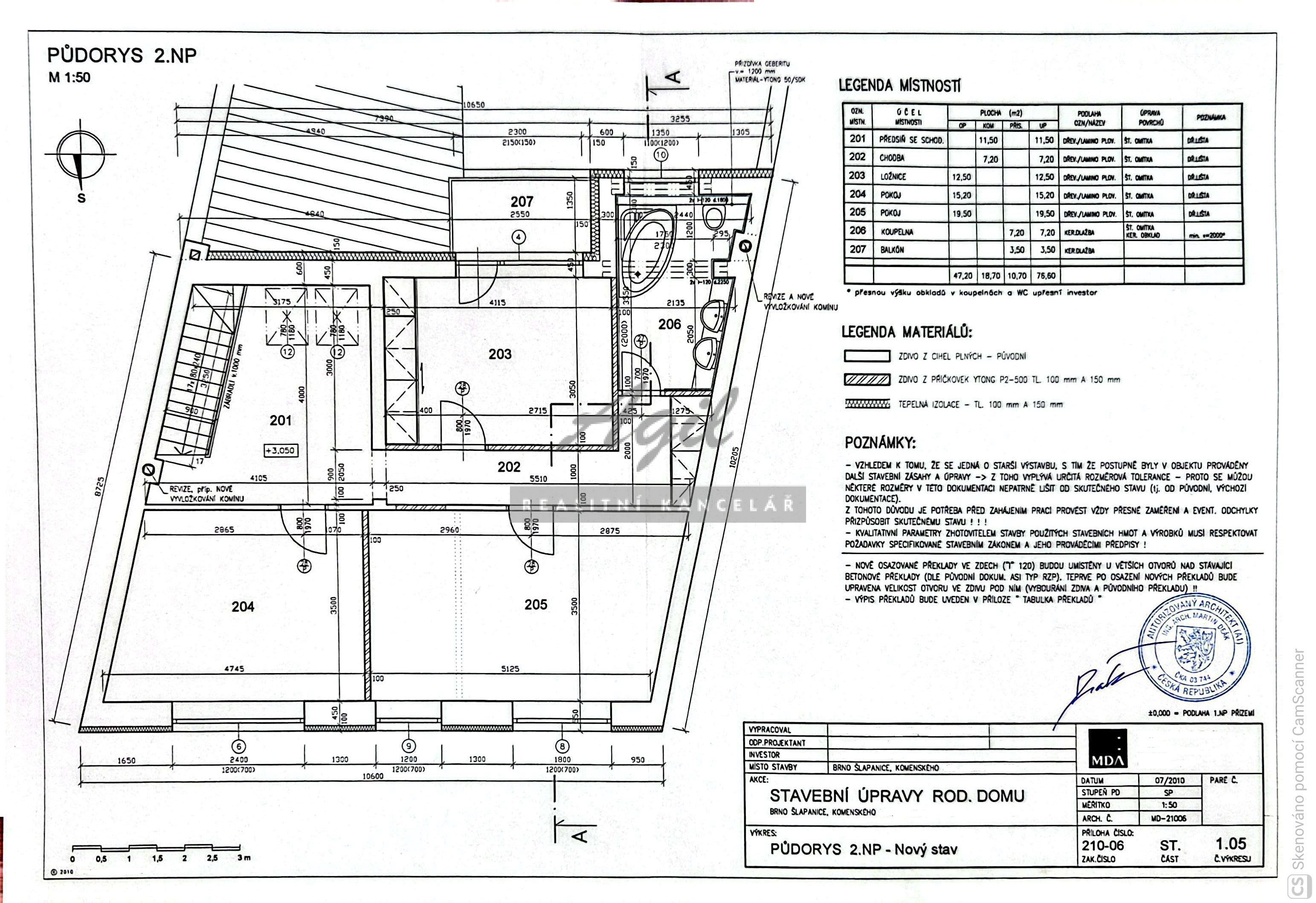
Se souhlasem majitele nabízíme prodej velmi zdařile zrekonstruovaného, řadového, částečně podsklepeného rodinného domu o dispozici 4+kk s jídelnou, zahradou, saunou a garáží ve městě Šlapanice na ulici Komenského. Dům se nachází na parcely o velikosti 296 m2, jehož zastavěná plocha domem činí cca 124 m2 a zahrada za domem cca 172 m2. V roce 2010 byl dům zrekonstruován: byla provedena přístavba kuchyně do zahradní části a změna pokoje do ulice na garáž a z části sklepa se vybudovala sauna. A také byly provedeny nové rozvody plynového topení, včetně plynového kotle s ohřevem teplé vody, nová elektroinstalace 230/400V v mědi, voda rozvedena v plastu a kanalizace v domě je oddílná, také v plastu, proběhla i výměna oken za plastové a byla provedena izolace podlah v přízemí domu a podřezání obvodového zdiva. V roce 2015 se dělalo zateplení venkovního pláště domu a to z ulice a zahrady. Střecha a trámy se neměnily, nebylo potřeba. Dům je postavený částečně ze smíšeného zdiva. Dispozice domu: Přízemí cca 120 m2 ( výměry jsou informativní ) Vstupní chodba 8 m2, kuchyně spojená s jídelnou 19 m2 a se vstupem na terasu a zahradu, obývací pokoj s krbem 32 m2, koupelna 3 m2 se sprchovým koutem, samostatné WC 1 m2, místnost s kotlem 2 m2, garáž 19 m2. Patro 80 m2 Schodiště z přízemí do patra, větší podesta, kde nyní majitelé mají pracovnu, 2x dětský pokoj do ulice a ložnice situovaná do zahrady se vstupem na balkon, koupelna spojená s WC. Půda Prázdná a je možné vybudovat další obytnou část. Celkové měsíční náklady cca 8.000,- Kč. Vybavenost obce: několik praktických a dětských lékařů, zdravotní středisko, zubaři, veterinární ordinace, lékárny, 2 MŠ, ZŠ s krytým bazénem a tělocvičnou, gymnázium, nákupní středisko Albert, Lípa, Penny, stavebniny, domácí dílna, drogerie, obchody s oblečením a módou, cukrárny, restaurace, fotbalové hřiště, Sokolovna, víceúčelová sportovní hala, 2 tenisové haly. Dostupnost: trolejbus 31, autobus, vlak.
13 000 000Kč
+ provize RK
Základní údaje
Číslo zakázky:
728161
Užitná plocha [m²]
200
Počet podlaží v domě
2
Poloha objektu
řadový
Typ domu
patrový
Druh objektu
smíšený
Stav objektu
po rekonstrukci
Zastavěná plocha [m²]
124
Plocha parcely [m²]
296
Upřesňující údaje
Dispoziční řešení domu
jednogenerační
Umístění objektu
klidná část obce
Další nebytové prostory
| garáž: | ANO |
| dvojgaráž: | NE |
| přístřešek: | NE |
Zeleň
| stromy nebo keře: | ANO |
Typ komunikace
| betonová: | NE |
| dlážděná: | NE |
| asfaltová: | ANO |
| neupravená: | NE |
Schodiště
| dřevěné: | ANO |
| kamenné: | NE |
| betonové: | NE |
| kovové: | NE |
| zábradlí nebo madlo: | NE |
Telekomunikace
| telefon: | NE |
| internet: | ANO |
Sítě
| satelit: | NE |
| kabelová TV: | NE |
| kabelové rozvody: | ANO |
| ostatní rozvody: | NE |
Topení
| lokální plynové: | NE |
| lokální na tuhá paliva: | NE |
| lokální elektrické: | NE |
| ústřední plynové: | ANO |
| ústřední na tuhá paliva: | NE |
| ústřední elektrické: | NE |
| ústřední dálkové: | NE |
| jiné: | NE |
Dopravní dostupnost
| vlak: | ANO |
| dálnice: | ANO |
| silnice: | ANO |
| MHD nebo IDS: | ANO |
| autobus: | ANO |
Elektřina
| 120V: | NE |
| 230V: | ANO |
| 380V / 400V: | ANO |
Voda
| studna nebo jiný vlastní zdroj: | NE |
| dálkový vodovod: | NE |
| voda je v objektu i rozvedena: | ANO |
Odpad
| kanalizace: | ANO |
| čistička: | NE |
Plyn
| individuální: | NE |
| plynovod: | ANO |
Občanská vybavenost
| škola: | NE |
| školka: | NE |
| zdravotnické zařízení: | NE |
| pošta: | NE |
| supermarket: | NE |
| kompletní síť obchodů a služeb: | ANO |
Lokalita
Makléř této zakázky
Vítězslav Syrový
realitní makléř
+420 736 646 769
vsyrovy@rkagil.cz




























