2+1, 53 m2 + sklep v ČD ve Vršovicích
aktivní
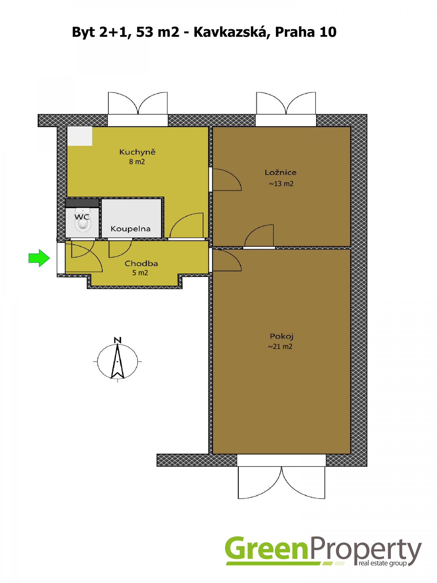
Nabízíme k prodeji byt 2+1 o celkové ploše 53 m², umístěný v 5. patře činžovního domu s výtahem ve vyhledávané lokalitě Praha 10 - Vršovice. Byt je zcela vyklizen, připraven na kompletní rekonstrukcí. Majitel jej před prodejem vymaluje bílou barvou. Rekonstrukce včetně kuchyně a bytového jádra umožňuje novému majiteli upravit si byt zcela podle vlastních představ. Fotografie interiéru jsou vizualizacemi možného budoucího stavu. Kuchyň (7,7 m²) a ložnice (12,6 m²) jsou orientovány na sever do klidného vnitrobloku. Dominantou bytu je prostorný obývací pokoj (21 m²) s orientací na jih do klidné ulice Kavkazská, který zajišťuje dostatek světla. K bytu náleží sklepní kóje cca 3 m². V domě jsou k dispozici také společné prostory. Výborná lokalita s kompletní občanskou vybaveností, v pěší dostupnosti Havlíčkovy sady (Grébovka), OC Eden, školy, obchody, restaurace a skvělé dopravní spojení do centra. Byt je vhodný jak pro vlastní bydlení, tak jako investice.
7 500 000Kč
včetně provize
Základní údaje
Číslo zakázky:
724061
Dispozice
2 + 1
Podlaží
5
Počet podlaží v domě
7
Celková podlahová plocha [m²]
53
Užitná plocha [m²]
53
Druh objektu
cihlový
Stav objektu
dobrý
Vlastnictví
osobní
Plocha balkónu [m²]
0
Plocha teras [m²]
0
Lodžie [m²]
0
Upřesňující údaje
Počet podlaží pod zemí
1
Užitná plocha [m²]
53
Výška stropu [cm]
268
Plocha sklepů [m²]
3
Bytové jádro
umakartové
Druh bytu
v bytovém domě (družstevní nebo společenství vlastníků)
Umístění objektu
klidná část obce
Vybavení domu
| garáž: | NE |
| výtah: | ANO |
| parkoviště: | NE |
Topení
| lokální plynové: | NE |
| lokální na tuhá paliva: | NE |
| lokální elektrické: | NE |
| ústřední plynové: | NE |
| ústřední na tuhá paliva: | NE |
| ústřední elektrické: | NE |
| ústřední dálkové: | ANO |
| jiné: | NE |
Dopravní dostupnost
| vlak: | NE |
| dálnice: | NE |
| silnice: | NE |
| MHD nebo IDS: | ANO |
| autobus: | NE |
Plyn
| individuální: | NE |
| plynovod: | ANO |
Občanská vybavenost
| škola: | NE |
| školka: | NE |
| zdravotnické zařízení: | NE |
| pošta: | NE |
| supermarket: | NE |
| kompletní síť obchodů a služeb: | ANO |
Lokalita
Makléř této zakázky
Mgr. Tomáš Karban
realitní makléř
+420 731 547 313
karban@greenproperty.cz



