Prodej rodinného domu, 92 m2
active
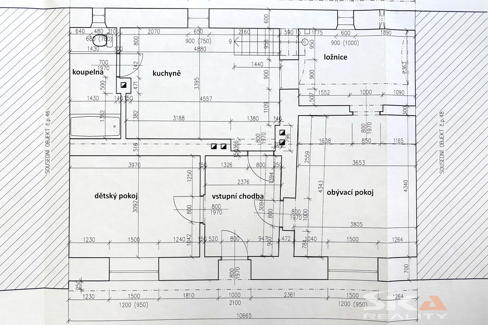
Exkluzivně nabízíme k prodeji nově vystavěný řadový rodinný dům o dispozici 3+1 v klidné části obce Líšťany, vzdálené cca 6km od města Louny. Dům stojí na pozemku obdélníkového půdorysu o celkové výměře 92 m2. Jedná se o stavbu z materiálu Ytong, která byla postavena přibližně před 13 lety na místě původní stavby s novou základovou deskou. Dispoziční řešení: vstupní chodba, nalevo je přístup do dětského pokoje, přímo z chodby se vstupuje do kuchyně, na kterou navazuje koupelna se sprchovým koutem a toaletou, napravo z chodby se nachází obývací pokoj, přes který je přístup do ložnice. Z chodby je dále přístupná půda, která slouží jako skladovací prostor. Dům je napojen na veškeré IS: veřejný vodovod, elektřina 220/380V, plyn, kanalizace. Vytápění je zajištěno plynovým kotlem umístěným v koupelně, který je napojený na podlahové i ústřední topení. Hlavní předností domu je jeho umístění v klidné části obce. V obci se nachází obchod, hostinec, obecní úřad, autobusová zastávka. Vzhledem ke skutečnosti, že zatím nemáme k dispozici PENB, uvádíme třídu energetické náročnosti budovy G. V případě zájmu pomůžeme vyřídit financování. Více informací poskytneme při osobní prohlídce nebo v RK.
3 990 000CZK
including commission, including legal services
Basic data
Number of contract:
3948
Usable area [m2]
67
Number of floors in house
1
Object kind
town house
House type
single-story
Building type
brick
Building condition
very good
Building area [m2]
92
Plot area [m2]
92
Other data
Road type
| concrete: | No |
| tiled: | No |
| asphalt: | Yes |
| unadjusted: | No |
Heating
| local gas: | No |
| local solid fuel: | No |
| local electric: | No |
| central gas: | Yes |
| central solid fuel: | No |
| central electric: | No |
| central district: | No |
| other: | No |
Transport accessibility
| train: | No |
| highway: | No |
| road: | Yes |
| public transit: | No |
| bus: | Yes |
Electricity
| 120V: | No |
| 230V: | Yes |
| 380V / 400V: | Yes |
Water
| well or other own source: | No |
| district water supply: | Yes |
| water is also distributed in object: | No |
Gully
| sewerage: | Yes |
| purifier: | No |
Gas
| individual: | No |
| gas pipeline: | Yes |
Location
Broker
Miroslav Reh
realitní makléř
+420 722 422 822
m.reh@sikareality.cz


























