Pronájem OV 1+kk Okrouhlá Brno s balkonem
active
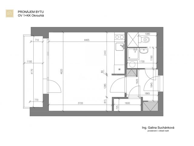
Nabízíme k pronájmu příjemný byt 1+kk s balkone v Brně - Bohunicích. Byt se nachází v revitalizovaném panelovém domě s výtahem. Díky solárním panelům jsou nižší náklady na ohřev vody. Dispozice bytu: předsíň, komora, koupelna s WC, pokoj s kuchyňským koutem. Součástí bytu je také sklepní kóje. Byt je vybaven kuchyňskou linkou se spotřebiči (sklokeramická varná deska, digestoř, pračka, lednice) a zařízenou koupelnou s WC. Okna jsou plastová, opatřená roletami den a noc, vstupní dveře do bytu jsou bezpečnostní. Lokalita: dům se nachází ve slepé ulici s pěkným výhledem do okolí. V docházkové vzdálenosti je FN Brno, Campus Square univerzitní kampus, Lékařská fakulta, mateřské školy, dětské hřiště, zastávky MHD a řada obchodů. Majitel si vyhrazuje právo vybrat nájemce dle vlastních kritérií. Požadovaná jistota činí dva měsíční nájmy. Provize realitní kanceláři: jeden měsíční nájem + DPH. Bližší informace a prohlídku Vám ráda zajistí Galina Suchánková.
12 000CZK per mon.
+ commission RE
Basic data
Number of contract:
723281
Flat kind
studio
Floor location
7
Number of floors in house
8
Floor area [m2]
32
Usable area [m2]
32
Building type
panel
Building condition
very good
Ownership
personal
Balcony area [m2]
4
Terrace area [m2]
0
Loggia area [m2]
0
Other data
Usable area [m2]
32
Energy performance certificate
Location
Broker
Ing. Galina Suchánková
realitní makléř
+420 602 568 693
galina@reingmorava.cz















